THE ROYALE RESIDENCE....44 Hospital St. Providence, RI 02903....MAP
IT
Stylish brand new apartments situated in Downtown Providence’s The Royale Residence. Close to Brown University Warren Alpert Medical School. Take the elevator up to these great apartments which features stainless steel appliances, granite counters, laundry in the unit, and central air. Excellent location within walking distance to all the nearby coffee shops and restaurants. There is a fitness room on the first floor for the residents. 1 interior parking garage space included nearby, additional space available for rent. Furnished or unfurnished. Call for availability Samson Realty 401-454-5454.
Outside & Views
Resident's Fitness Area, 1st Floor
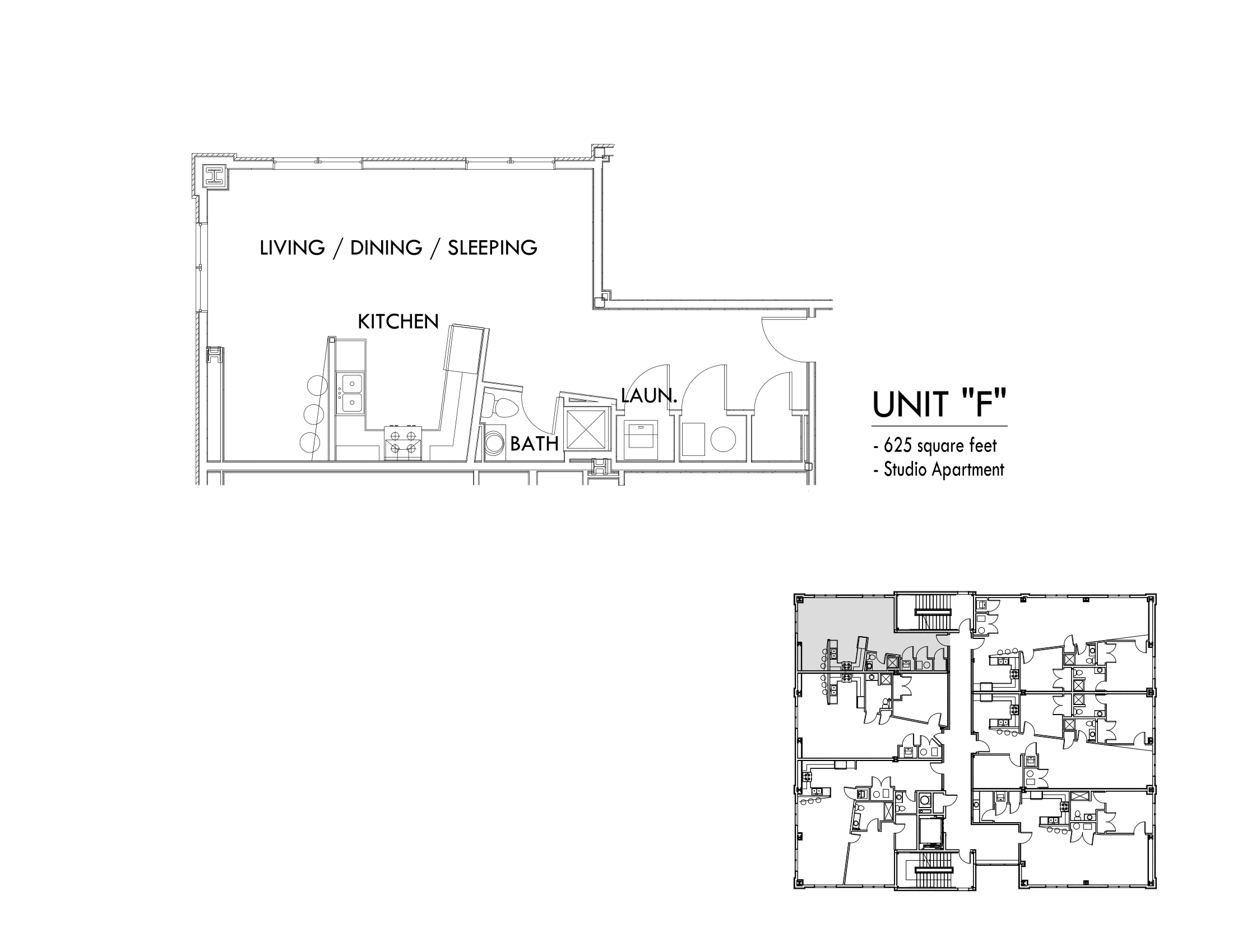
Plans..There are 5 floors with 6 apartments each. The apartments are lettered A-F on each floor. Below are plans of the apartments by letter.